Independence Village Community Features
Here are a few of the benefits of living in Independence Village:
- Professionally maintained landscaping and common areas, including a bandstand, gazebo, fountain sculpture, and fish pond.
- Dog park
- Clubhouse
- Guest parking in designated areas
- Hobby/workshop studios available
- Car wash area
- Dining at Independence Hill or meal delivery
- Beauty/barber shop at Independence Hill
- Massage room
- Business Center with computers, copiers, fax machines
- Airport transportation
Homes include:
- Full home maintenance
- Weekly housekeeping and linen service
- Lawncare
- Home alarm system and monitoring
- Pest control service
- Property taxes and homeowners’ insurance
- Social activities and more
Floorplans within the Independence Village Community
Our Senior Living Advisors are here to help. Call today for pricing and availability.
Independence Village - Broadmoor
2 bed/ 2 bath 1616 sq ft house
Independence Village - All Floorplans
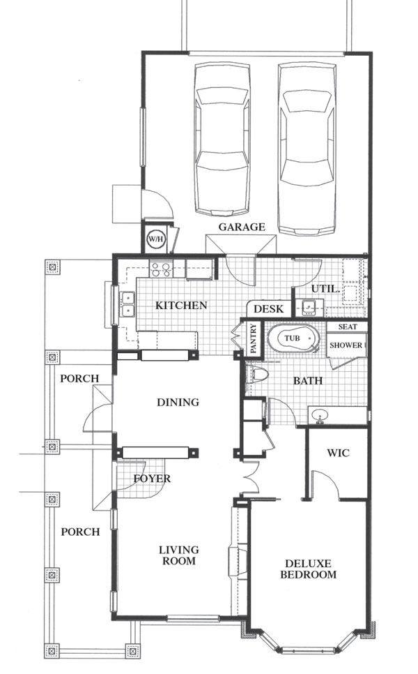
The Augusta
1 bedroom / 1 bath / 2 car garage
This 1,078 square foot home features a welcoming front porch and a deluxe bedroom with a large bay window.
The Broadmoor
2 bedroom / 2 bath / 2 car garage
In this 1,616 square foot home, both the dining room and a deluxe bedroom open onto their own patios.
The Carmel
2 bedroom / 2 bath / den / 2 car garage
This 1,800 square foot home offers a den extending off the kitchen and additional storage off the utility room.
The Cypress
2 bedroom / 2 bath / den / 2 car garage
This 1,900 square foot home offers a large open den area off the kitchen and an oversized covered patio.





